Pitkäkatu 43 B 20
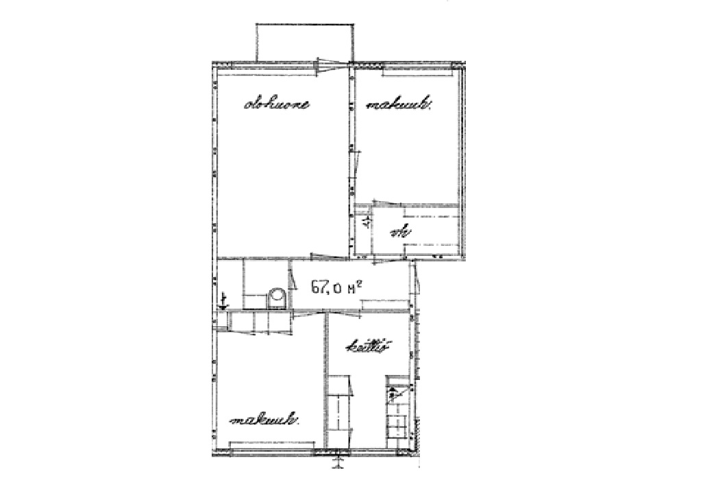
3 h + k
66m²
4. kerros
939€/kk
Huoneistotiedot
Huoneisto
Pitkäkatu 43 B 20
Huoneistotyyppi
3 h + k
Pinta-ala
66 m²
Kerros
4 / 4
Maantasalla
Ei
Vuokra
939 €/kk
Sauna asunnossa
Ei
Parveke
Kyllä, lasitettu-
Terassi
Ei
Kartta
Tietoa yhtiöstä
Yhtiö
Pitkäkatu 43
Alue
Hanko
Osoite
Pitkäkatu 43, 10900 Hanko
Vesimaksu
23 €/henkilö/kk
Lämmitysjärjestelmä
Maalämpö
Tupakointi
Sallittu vain parvekkeilla ja sisäpihalla. Ei sallittu sisäänkäyntien lähellä.
Lemmikkieläimet
Lemmikkieläimet ovat sallittuja, mutta eläimet on pidettävä kytkettyinä, kun ne ovat asunnon ulkopuolella.
Kuitu
Kyllä, liittymä ei sisälly vuokrasopimukseen (Karjaan Puhelin).
Yleinen sauna
Kyllä
Hissi
Kyllä, 3 kpl
Parkkipaikka - kylmä
Kyllä, ne paikat jotka eivät ole varattuja
Parkkipaikka - sähkö
Kyllä
Autotalli
4 kpl
Kuivaushuone
Kyllä
Pesutupa
Ei
Varasto
Kyllä, kellarikerroksessa
Kylmävarasto
-
Ulkoiluvälinevarasto
Kyllä, kellarikerroksessa
Vakuus
1 kuukauden vuokra









